COMPTOIR
Neeed   
register

×
×

Test • DeepCool CL500
CL500 au repos
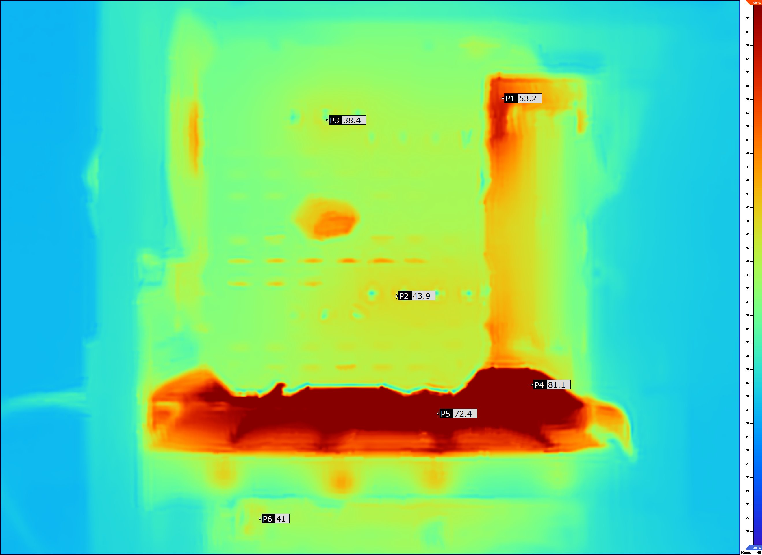
Charge lourde : ça chauffe dur pour le GPU !

• Performances en refroidissementT

Voilà le moment délicat, la mesure des températures en charge. Pour cela, nous mettons à rude épreuve le boîtier testé en utilisant nos processeurs surmontés du Grand Macho. Le GPU ne sera équipé que de l'Accelero S1 Plus pour ce test. Le logiciel OCCT est utilisé en mode "Alimentation" (CPU+GPU) afin de solliciter l'ensemble durant une heure complète. Les températures relevées sur la carte mère, le disque dur, le processeur et la carte graphique sont exprimées en Delta T, c'est à dire en écart par rapport à la température ambiante :

 

 

Du côté des températures, pas de miracle en l'état. Le modèle étant très ouvert, il permet d'absorber suffisamment d'air frais pour maintenir la configuration dans de bonnes conditions, en tout cas du côté du processeur. Ce dernier profite de la proximité du ventilateur d'extraction pour souffler un peu, du moment que l'on ne pousse pas sur le TDP. La carte graphique pour sa part frôle l'asphyxie une fois de plus. Elle n'aime pas ce genre de flux limité, dans un volume somme toute assez important. 

 

La régulation fait grimper la note, mais le test passe tout de même. Notre GPU souffre encore un peu plus risquant une nouvelle fois de rompre. En ce qui concerne les points annexes, nous notons un delta important sur l'unité de stockage qui ne sera pas contre un peu de renfort côté ventilation.

 

CL500 au repos [cliquer pour agrandir]Charge lourde : ça chauffe dur pour le GPU ! [cliquer pour agrandir]

L'Imagerie thermique met en évidence la souffrance du GPU

 

• Et avec 140W à dissiper ?

 

À 140, ça passe juste à pleine vitesse. La carte graphique est en peine et le processeur est proche de sa température max. La régulation sonnera ensuite le glas du CPU ! En cas d'urgence, si vous n'avez pas modifier le flux d'air, vous serez confronté à un plantage rapide.



Un poil avant ?

TSMC rajoute des détails sur ses prochains nodes de gravure en 5 et 3 nm

Un peu plus tard ...

Tournée des mobales A520 : ASRock ferme le bal avec un énorme bouquet de mobales

Les 4 ragots
Les ragots sont actuellement
ouverts à tous, c'est open bar !