COMPTOIR
07-fev • le comptoir est en cours de migration sauce salade cornichons coté serveur, ne soyez pas étonnés de quelques funestes bugs temporaires.
register

×
×

Test • Seasonic Syncro q704
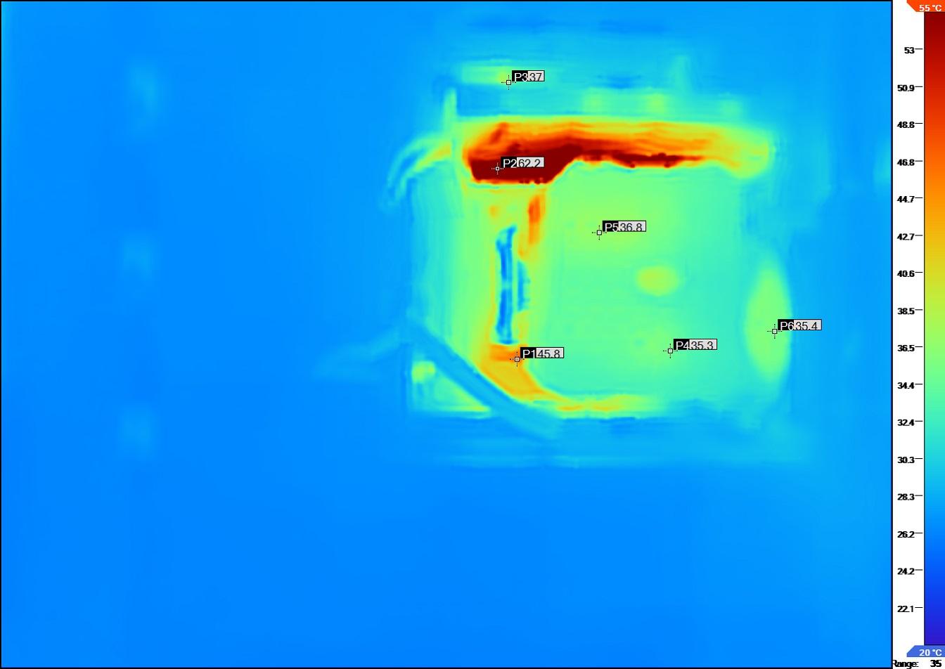
Au repos dans le boîtier
La charge un peu plus contraignante, mais tout se passe bien

• encore du bruit ?

Au cours de nos tests, nous avons remarqué que les ventilateurs Nidec installés faisaient non seulement du bruit, mais qu'il émettaient à certains moments un sifflement des plus désagréables. Afin de mettre cela n évidence, nous avons isolé les plages de fonctionnement durant lesquelles la ventilation siffle.

 

 

Nous avons découvert deux paliers distincts. Le premier se situe entre 1500 et 1650 tr/min alors que la ventilation n'est alimentée qu'à 5.4 V à peine. Le second palier est un peu plus large puisqu'il s'étend de 1800 à 2000 tr/min environ, entre 7.8 et 9V.

 

S'ils poussent fort (sur le papier), les ventilateurs installés ne semblent pas des plus qualitatifs. Si Seasonic souhaitait proposer un boîtier haut de gamme, pourquoi avoir choisi de la ventilation industrielle plutôt que des modèles résolument haut de gamme est spécifique ? Il aurait été intéressant de voir des NF-A12X25 dans le Q704 par exemple, ce qui aurait permis de faire passer la pilule tarifaire.

 

• performances en refroidissement

Voilà le moment délicat, la mesure des températures en charge. Pour cela, nous mettons à rude épreuve le boîtier testé en utilisant nos processeurs surmontés du Grand Macho. Le GPU ne sera équipé que de l'Accelero S1 Plus pour ce test. Le logiciel OCCT est utilisé en mode "Alimentation" (CPU+GPU) afin de solliciter l'ensemble durant une heure complète. Les températures relevées sur la carte mère, le disque dur, le processeur et la carte graphique sont exprimées en Delta T, c'est à dire en écart par rapport à la température ambiante :

 

 

Du côté des températures, les résultats sont loin d'être proportionnels au bruit généré. Si dans l'ensemble tout est correct, c'est bien là le problème, c'est juste correct. Notre processeur pourra travailler dans de bonnes conditions lorsque la ventilation est à pleine vitesse, tout comme la carte graphique d'ailleurs. Mais les nuisances excessives mesurées devraient au moins s'accompagner de performances hors norme ! Ce n'est malheureusement pas le cas.

 

Idem lorsque nous réduisons la vitesse des ventilateurs. Les nuisances relevées restent élevées et les résultats sont du même ordre. Là encore, nous obtenons une prestation moyenne sur les deux principaux points de mesure. Quant aux mesures annexes, elles n'impressionnent guère plus.

 

Au niveau des températures, il n'y a pas de gain notable avec les NF-A12x25. Les températures restent tout de même assez proches de celles obtenues avec les ventilateurs d'origine, mais le confort auditif est très nettement amélioré.

 

Au repos dans le boîtier [cliquer pour agrandir]La charge un peu plus contraignante, mais tout se passe bien [cliquer pour agrandir]

Comme on vous l'a dit, des tempértures corrects, mais un bruit...

 

• et avec 140w à dissiper ?

 

L'exercice réalisé avec un processeur au TDP de 140 W passera fort heureusement, et toujours avec les nuisances excessives dont on a du mal à s'habituer. La prestation ici reste convenable, sans nous en mettre plein la vue. Le test passe, c'est l'essentiel direz-vous.



Un poil avant ?

GIGABYTE enregistre la RX 6600 XT

Un peu plus tard ...

NVIDIA Canvas : le gauGAN est de retour, dans une application dédiée !

Les 5 ragots
Les ragots sont actuellement
ouverts à tous, c'est open bar !